Grunwalds Have Grunwalds Have Grunwalds Have Grunwalds Have Grunwalds Have Grunwalds Have Grunwalds Have Grunwalds Have Grunwalds Have

Grunwalds Have

Grunwalds Have. 1 rooms. 37–50 m². From 5,083 DKK/month.


Rental terms:

  • Rooms: 1
  • Area: From 37m² to 50m²
  • Rent: 5,083 DKK/mo.
  • Type: Dormitory
  • Verified: Verified
  • Address: Full address is unlocked with an active subscription. København Ø 2100

Grunwalds Have: Modern Youth Housing in Østerbro

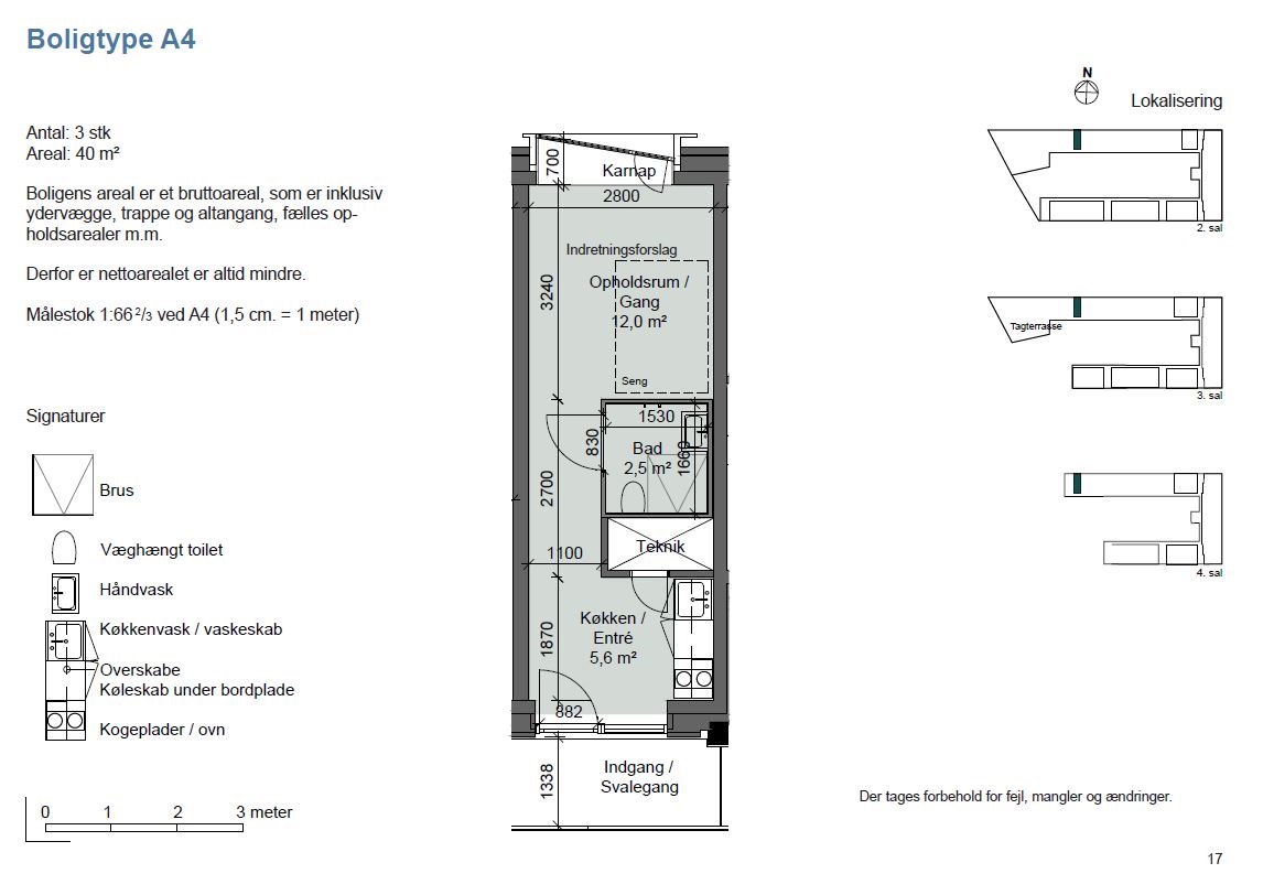
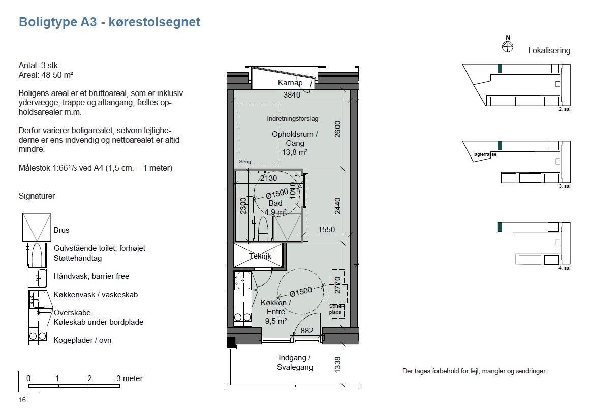
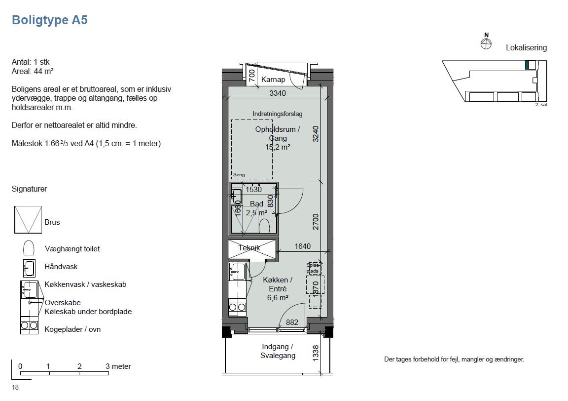
Grunwalds Have is a new, smoke-free property in Østerbro, Copenhagen, offering modern youth housing with all the necessary facilities. There are a total of 223 youth apartments, of which 56 are public housing. Three of these are specially adapted for wheelchair users. The public housing units are located from the 2nd to the 7th floor in the northern part of the building, where residents can enjoy their own private access to kitchen, toilet, and bathroom.

Located just behind Østre Gasværk Theatre, Grunwalds Have is named after the famous actor Morten Grunwald, known from the Olsen Banden films, among others. Østerbro is one of Copenhagen's most attractive neighborhoods and houses about 12% of the municipality's population. The area is known for its many offerings in both culture and leisure.

Within the property, there are several facilities that make everyday life convenient for residents. The administration and rehearsal room for Østre Gasværk Theatre are located in the northwest corner of the building. There are good parking options both in the basement and on the ground floor, as well as plenty of space for bicycle parking outside. A lovely shared courtyard and two rooftop terraces offer relaxation and coziness for residents. Additionally, there are shared lounges and a laundry room on the 1st floor, as well as storage units in the basement for all apartments.

Grunwalds Have is ideally located in relation to public transport, with both bus, metro, and S-train within short reach. By bike, one can quickly reach central places like Kongens Nytorv and the University of Copenhagen. The area offers everything one needs in daily life: grocery stores, a library, citizen service, and a wealth of sports and cultural offerings. There are also many schools and daycare institutions for those who choose to stay in Østerbro after their youth years.

Østerbro is known for its rich selection of shops, cafes, and restaurants, especially along Østerbrogade and Århusgade. The nightlife thrives with places like Park Bio and Bopa Plads, which are popular meeting spots. For those who enjoy outdoor activities, one of Copenhagen's most popular harbor baths is located in Nordhavn, and Fælledparken is not far away.

Practical information about Grunwalds Have includes that all apartments have modern kitchen facilities with refrigerator/freezer, built-in oven, and cooktops. It is important to note that pets are not allowed, and that electricity, heating, and water are paid in advance. Fiber internet is paid directly to the provider.

Facilities

  • Private kitchen
  • Private toilet
  • Shared kitchen
  • Shared laundry room

Når du klikker på knappen 'Ansøg nu' eller 'Kontakt udlejer nu' henvises du til en side væk fra MinUngdomsBolig.dk

From 5,083 DKK/mo.